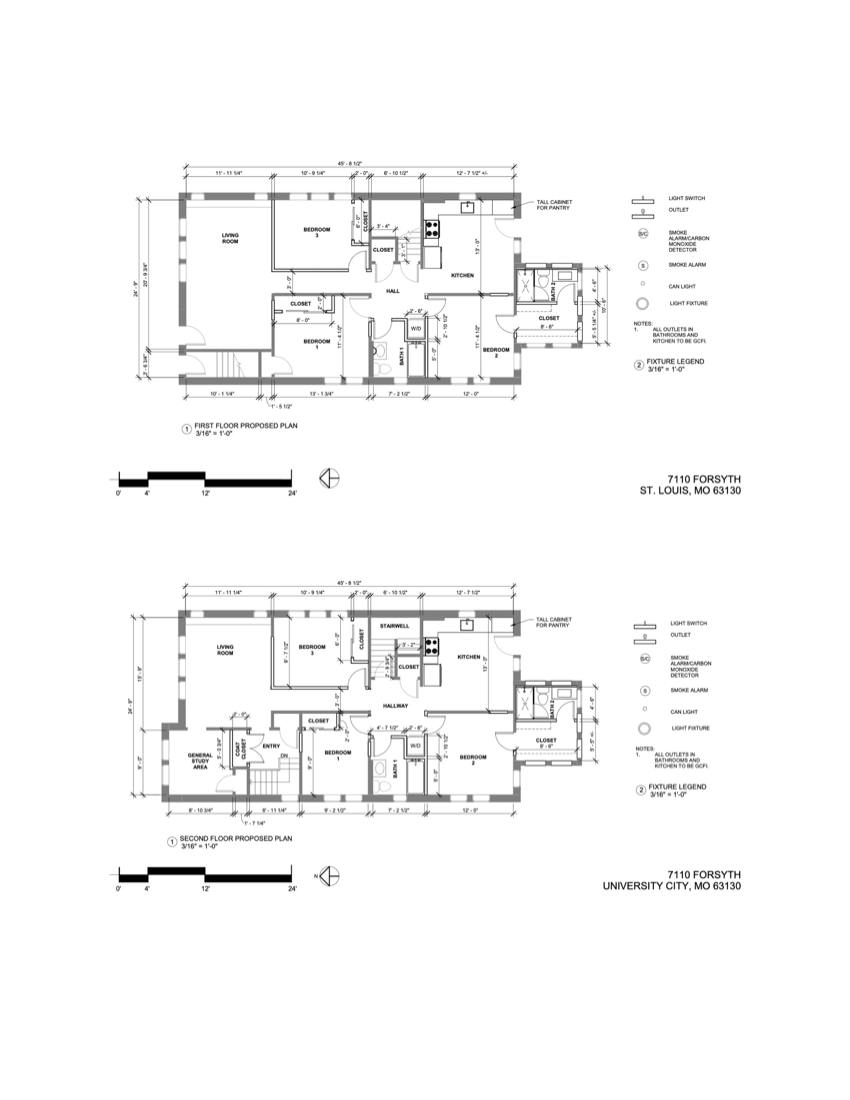
7110 Forsyth

7110 Forsyth Blvd
3
2
Sq. Ft. 1300
Regular price
$0.00
Sale price
$0.00
Regular price
Sold out
Unit price
per 
EXPLORE FLOORPLANS
3-Bed 2-Bath
3-Bed 2-Bath
3-Bed 2-Bath
3-Bed 2-Bath

About Property

Just steps from WashU, 7110 Forsyth Blvd offers spacious and modern apartments thoughtfully designed for students. Each unit provides a comfortable layout with contemporary finishes, creating the perfect blend of style, convenience, and functionality.

Building Features

  • Two 3-bedroom, 2-bath units

  • Prime Forsyth location near campus and dining

  • In-unit washer & dryer

  • Enclosed garage parking

  • Furniture included

Enjoy an effortless living experience with well-designed spaces, modern amenities, and a central location that keeps you close to everything you need.

Overview

Sq. Ft.
1300
Beds
3
Baths
2
Floor Plan
View
Available
May 2027

Get In Touch